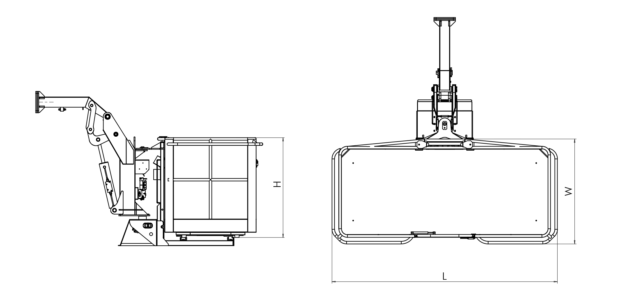
The FB SKY SPACE 300 personnel baskets, made of aluminum, are the largest models currently available in our range.
They are equipped with a self-leveling & load-limiting system, making them certifiable to EN 280 standards.
For all models, both hydraulic and electric configurations are available. In the hydraulic version, the platform relies on the vehicle’s batteries and hydraulic distributor, while the electric version features onboard batteries, making it completely independent.

